首 页 关于奥洛森 新闻中心 产品总汇 营销网络客服中心 人力资源 在线留言 联系我们
全部产品
在线订单
调节阀系列
电动阀系列
气动阀系列
电磁阀系列
球阀系列
蝶阀系列
闸阀系列
截止阀系列
水力控制阀系列
衬胶衬氟阀门系列
其它阀门
自力式调节阀 现在的位置:首页--产品总汇--自力式调节阀--自力式温控阀
名称: 自力式温控阀
类别: 自力式调节阀
型号 ZZWP
口径: DN15-300
压力 1.6、2.5MPa
材质: 球墨铸铁、铸钢、不锈钢
  产品详细介绍

 产品简介

ZZWPALS自力式温度调节阀(自力式温控阀)无须外界能源而进行温度自动调节。它适用于蒸汽、热水、热油等为介质的各种換热场合。

广泛应用于供暖、空调、生活热水中的温度自动调节,以及特殊场合的温度自动调节,如化工、纺织、制药等生产过程。

工作原理

ALS自力式温度调节阀(自力式温控阀)利用液体受热膨胀及液体不可压缩的原理实现自动调节。温度传感器内的液体膨胀是均匀的,其控制作用为比例调节。被控介质温度变化时,传感器内的感温液体体积随着膨胀或收缩。被控介质温度高于设定值时,感温液体膨胀,推动阀芯向下关闭阀门,减少热媒的流量;被控介质的温度低于设定值时,感温液体收缩,复位弹簧推动阀芯开启,增加热媒的流量。另有冷却型其工作原理与上述加热型相反。订货时请确认。

适用范围

采暖空调、生活热水、石油化工、电力、机电、纺织、橡胶、食品等行业。

使用特点

1、体积小、重量轻、安装简易;

2、准确可靠寿命长;

3、免维修式工作:

4、调节设定简易;

5、无源工作(无电源、气源正常工作);

6、无需昂贵的调试费用;

7、阀体密封采用V型环高温密封组件,防止了阀杆过紧抱死或漏气的可能性。

主要技术性能指标

阀体形式

加热型、冷却型

公称通径

DN15200mm

公称压力

PN1625

工作温度

-10300℃

温控范围

2898℃

连接形式

法兰、(螺纹适用于2″以内)

阀体材质

球铁、铸钢、不锈钢

密封填料

V型聚四氟乙烯填料、四氟乙烯石棉填料、石棉纺织填料、石墨填料

 

温包(温度探头)标准参数

阀体口径DNmm

15

20

25

32

40

50

65

80

100

125

150

200

温包长度(mm

300

400

400

导管长度(mm

3

3

3

3

3

3

3

3

3

3

3

3

温包直径(mm

25

连接螺纹(mm

管螺纹(G  1-1/4’’

根据现场工况,导管长度,温包可定制

 

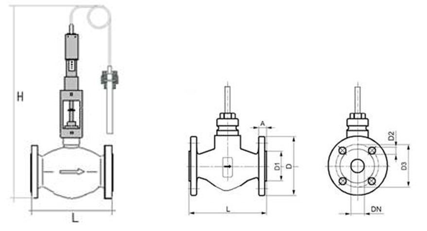
外形尺寸参数(mm

DN

A

ΦD

ΦD1

ΦD2

ΦD3

L

H

15

14

95

45

4-Φ14

65

130

400

20

14

105

55

4-Φ14

75

150

410

25

16

115

65

4-Φ14

85

160

420

32

18

135

78

4-Φ18

100

180

450

40

18

150

84

4-Φ18

110

200

480

50

20

165

99

4-Φ18

125

230

550

65

20

185

118

4-Φ18

145

290

600

80

22

200

132

8-Φ18

160

310

650

100

24

220

156

8-Φ18

180

350

700

125

26

250

184

8-Φ18

210

400

760

150

26

285

211

8-Φ23

240

480

850

200

30

340

184

12-Φ22

295

495

950

 
总 机:021-36160138 36160155 销售热线:021-55620666 55621666 36160097 17898857898(微信同号) 免费热线:800-820-1927 传 真:021-36030666 36162915
地  址:上海市宝山城市工业园区城银路518号 CopyRight © 2006-2026 上海奥洛森阀门制造有限公司